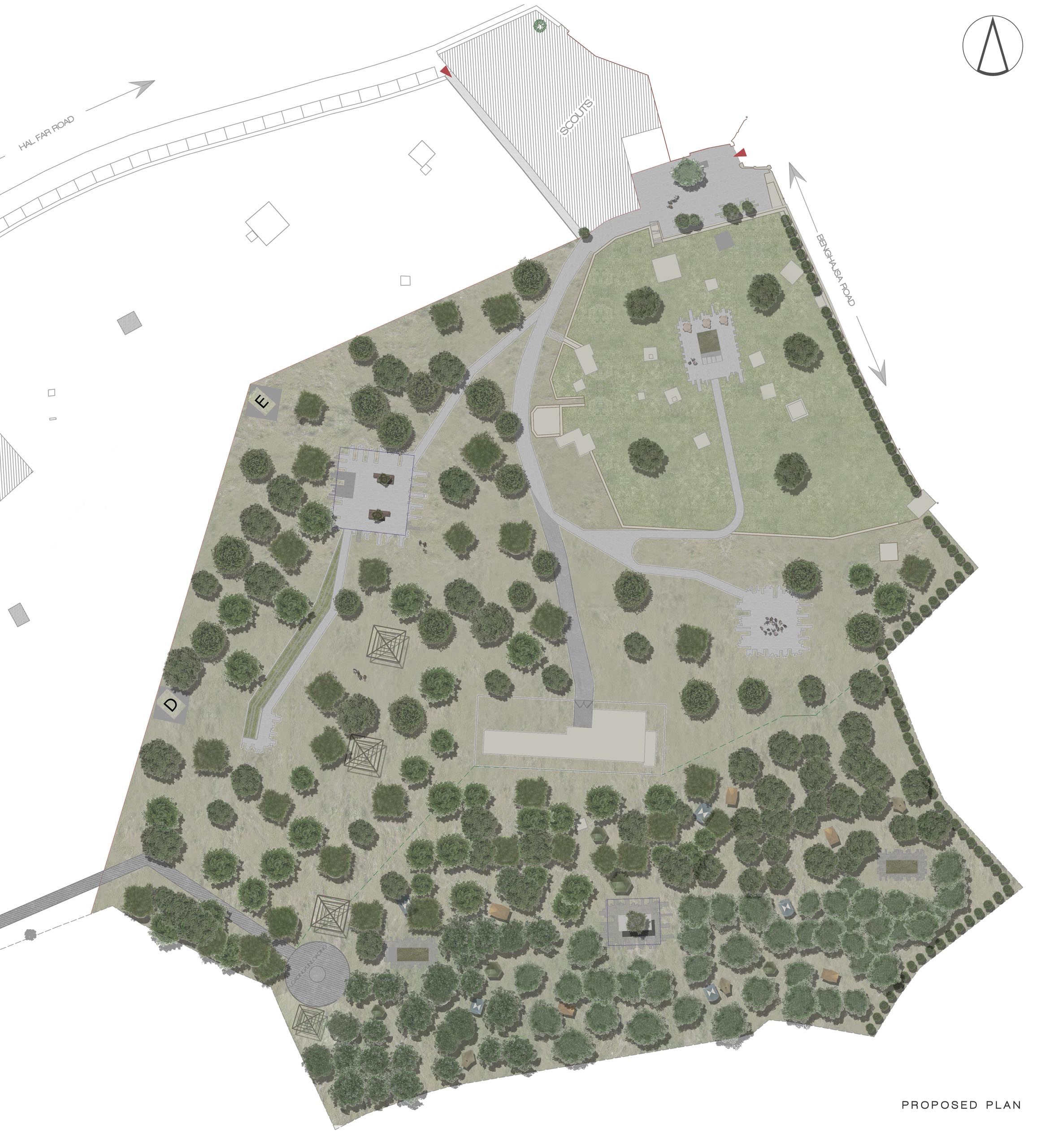
The brief called for the conversion of a site in Bengħajsa, Birżebbuga (Malta) into a recreational area by implementing an afforestation and including a picnic and camping areas.
Keeping the intended use in mind, the design concept revolves around conserving and incorporating old British structures within the site, as well as maintaining a balance between naturally landscaped areas and other multi-purpose spaces designated for different recreational activities. The proposed park shall be ingrained within the rich history of the site, creating a canvas for the relationship between recreation, education and culture. The proposal is intended to serve the first phase of a larger project, which would include the expansion of the park as well the restoration and rehabilitation of a British underground bunker.












